Plac, povrsine 6308 kvadrata, se nalazi u srcu nacionalnog parka Fruske Gore na nadmorskoj visini 360 m.
Dozvoljeno je graditi stambeno-poslovni objekat spratnosti P+3+PK na osnovu informacije o lokaciji dobijene od sluzbe za zastite zivotne sredine i urbanizma
Dozvoljen indeks zauzetosti parcele u osnovi je 50 posto od velicine placa sto znaci da se moze graditi cca 12000 kvadrata stambenog i poslovnog prostora.
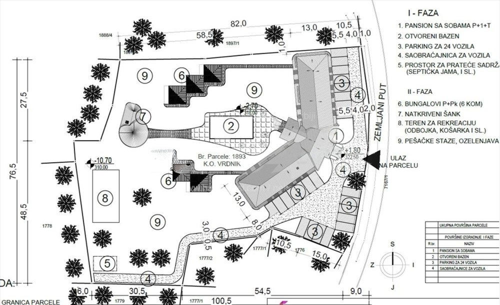
Panorama Star DOO, firma u mom vlasnistvu, poseduje idejni projekat pansiona 1200 kvadrata; bungalovi, bazen i otvoreni bar- 850 kvadrata.
Za idejni projekat ovog kompleksa su dobijeni urbanisticko tehnicki uslovi.
Na placu je uradjena busotina bunara termalne vode do 405 m gde je pronadjena termalna voda, cca 32 stepena. Busotina nije zavrsena.
Posedujemo sve potrebne dozvole sto se tice gradjevinskog projekta i busotine termalne vode.
Dodatne informacije na https://banemilosavljev.wixsite.com/panoramastar
Kontakt:063514984
Lokacija parcele (postavite crveni marker na Vašu parcelu)